Ismertető
Luxus ikerház eladó a Harsánylejtőn – panoráma, design és kiváló infrastruktúra egyben!
Ha egy különleges hangulatú, prémium minőségű otthont keres Budapest egyik legkedveltebb zöldövezeti részén, akkor ez az ingatlan tökéletes választás.
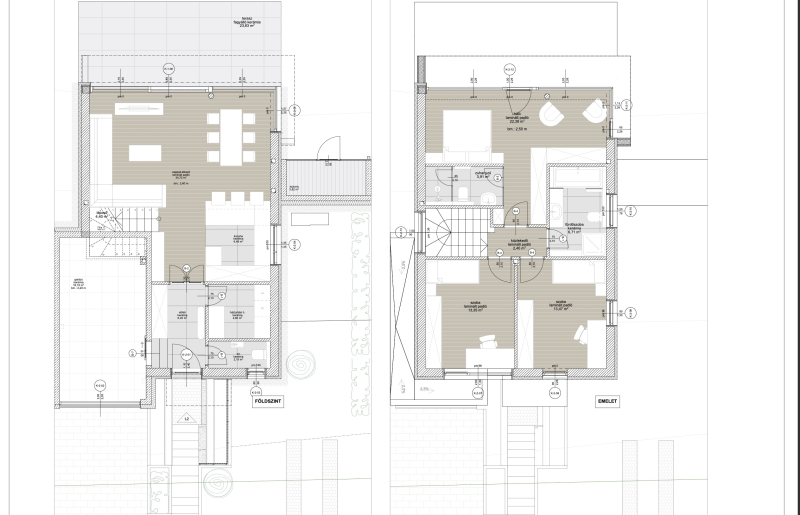
Ingatlan jellemzői
- Ikerház, mégis teljesen szeparált élettérrel
- Egyedileg megálmodott, modern design
- Hatalmas, világos terek, lenyűgöző térérzet
- Full panoráma a nappaliból és a teraszról
- Extrán luxus megjelenés, letisztult, időtálló stílus
- 2 autó parkolására elegendő garázs + autóbeálló
Műszaki tartalom
- Hőszivattyús fűtésrendszer
- Padlófűtés
- Mennyezeti hűtés-fűtés a maximális komfortért
- 30 cm-es Porotherm téglából épült falazat
- 15 cm Dryvit hőszigetelés
- Automata alumínium redőnyök
- Napelem előkészítés
- Riasztó
- Kamerarendszer előkészítés
- Választható burkolatok és szaniterek
Környezet és elhelyezkedés
Az ingatlan a III. kerületi Harsánylejtőn található, amely csendes, zöldövezeti környezetet biztosít, kiváló levegőminőséggel és családbarát hangulattal.
Infrastruktúra és közlekedés
Bevásárlás, szolgáltatások:
GoBuda Mall – kb. 5 perc autóval (bevásárlás, éttermek, mozi)
Auchan Óbuda – kb. 6–8 perc autóval
Lidl Óbuda – kb. 5 perc autóval
Tesco Express Óbuda – kb. 5 perc
Oktatás:
Óbudai Nagy László Általános Iskola – kb. 5 perc autóval
Britannica International School – kb. 10–12 perc
Több óvoda a környéken 5–8 percen belül elérhető
Tömegközlekedés:
137-es busz megállója kb. 3–5 perc sétára
Szentlélek tér kb. 15 perc alatt elérhető
218-as és 237-es buszok szintén a közelben
Szentlélek téren:
H5 HÉV – Batthyány tér kb. 20 perc
1-es villamos – gyors kapcsolat Pest felé
Autós közlekedés:
Árpád híd: kb. 10–12 perc
Belváros: kb. 20–25 perc forgalomtól függően
Gyors kijutás a 10-es útra és az M0-s körgyűrűre
Összefoglalva
Ez az ingatlan tökéletes választás azok számára, akik modern, energiatakarékos otthont keresnek, nem szeretnének kompromisszumot kötni a tér, a fény és a kilátás terén, és értékelik a prémium minőséget valamint az egyedi megoldásokat – mindezt kiváló infrastruktúrával és gyors közlekedéssel.
Ne maradjon le róla – ilyen adottságokkal rendelkező ingatlan ritkán kerül piacra.
Részletek
-
Építés éve:
2026 -
Szobák száma:
5 -
Állapot:
új -
Fűtés:
hőszivattyús -
Épület típusa:
ikerház -
Terasz:
32 m2 -
Szintek száma:
2 -
Telekméret:
670 m2 -
Övezet:
lakó -
Tetőtér:
nem beépíthető -
Fényviszonyok:
verőfényes
