Ismertető
Exkluzív életérzés az Anna-hegy lábánál.
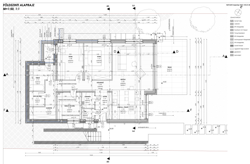
Földszinti luxusrezidencia burkolat választási lehetőséggel
Lokáció: Törökbálint, Anna-hegy
Fedezze fel a harmóniát, ahol a modern építészet találkozik a természet nyugalmával.
Az Anna-hegy exkluzív zöldövezetében, mindössze percekre a dinamikus városi élettől, egy páratlan minőségben kivitelezett, földszinti lakás várja Önt.
Ez a rezidencia a kényelem, az elegancia és a funkcionalitás tökéletes egyensúlyát kínálja, ráadásul Ön határozhatja meg a belső terek hangulatát.
A Lakás Adatai és Kialakítása:
Tágas Élettér:
A gondosan kalkulált, elegáns élettér 119,32 m² (nettó belső terület + a 22,58 m²-es terasz fele), amely minden négyzetcentiméterén a minőség és a kifinomultság érzetét nyújtja.
Burkolatválasztási Lehetőség:
Jelenleg a kivitelezési fázis lehetővé teszi, hogy a leendő tulajdonos saját ízlése szerint válassza ki a belső terek burkolatait:
Parketta burkolat: A nappali, a szobák és a közlekedő burkolata még szabadon választható (pl. prémium fa parketta, laminált padló).
Kerámia burkolat: A vizes helyiségek (konyha, fürdő, előtér, háztartási helyiség, terasz) falai és padlója még egyedileg, az Ön által kiválasztott kerámiákkal burkolható.
Főbb Helyiségek:
- Nappali (26,08 m²): Tágas, fényárban úszó központi tér.
- 3 Hálószoba 8,53 m2, (13,60 m² és 12,75 m²): Külön bejáratú, csendes hálók.
- Konyha + Étkező (12,21 m²): Stílusos helyiség, mely ideális a gasztronómiai élmények megteremtéséhez.
- Luxus Fürdő (7,46 m²): Egy igazi wellness-sziget.
- Praktikus Kényelem: Két különálló gardrób (6,55 m² és 2,62 m²), háztartási helyiség (2,98 m²).
Kertkapcsolatos Terasz: A nappaliból közvetlen kijárat nyílik a 22,58 m²-es teraszra, amely tökéletes kiegészítése a belső térnek.
Garázs: Az ingatlanhoz gépjárműbeálló vásárolható 10 millió Ft értékben.
Lokáció: Törökbálint Anna-hegy
Az Anna-hegy nem csupán egy cím, hanem egy életforma. Élvezze a környék védett, erdős területeit, a közeli túraútvonalakat és a fantasztikus kilátást nyújtó kilátót, miközben a főváros közelsége és a kiváló infrastruktúra a maximális kényelmet biztosítja. Ez az ingatlan kiváló befektetés azoknak, akik egyedi igények szerint szeretnék kialakítani álmaik otthonát.
Ne hagyja ki az alkalmat, hogy magáénak tudhassa ezt az exkluzív ingatlant!
Egy lépés a valóra vált álom felé – hívjon minket még ma!
VÁROM MEGTISZTELŐ HÍVÁSÁT, MINDEN NAP REGGEL 9-TŐL ESTE 9-IG, A HÉT BÁRMELY NAPJÁN.
HITELRE, JOGI TANÁCSADÁSRA, ÉRTÉKBECSLÉSRE VAN SZÜKSÉGE, KERESSEN BENNÜNKET BIZALOMMAL.
Részletek
-
Építés éve:
2026 -
Akadálymentes:
nem -
Szobák száma:
4 -
Állapot:
új -
Fűtés:
hőszivattyús -
Épület típusa:
tégla -
Terasz:
22 m2 -
Kilátás:
panorámás -
Parkolás:
1 állásos garázs -
Szintek száma:
3 -
Lift:
nincs -
Fényviszonyok:
verőfényes
