Ismertető
Csak irodánk kínálatában!
16.kerület legkedveltebb részén, Ómátyásföldön, igényes környezetben, újépítésű álomlakás nagy terasszal eladó 9 lakásos házban, gépkocsibeállóval.
Az ingatlan rendkívül magas műszaki színvonalon kivitelezett lakóházban, nappali + 3 hálós, PENTHOUSE jellegű nagyon világos, nettó 62 m2-es, nagy teraszos lakás, 15 m2 es terasszal, burkolatválasztási lehetőséggel eladó.
lakás: 83 millió Ft
Autóbeálló: 3 millió Ft
Összesen: 83 millió Ft
A lakás minimum 50% ÖNERŐVEL megvásárolható!
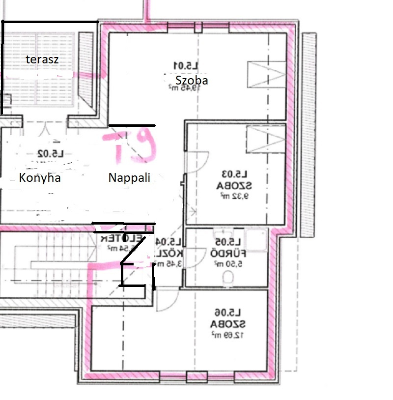
Helyiséglista:
- Nappali: 19.45 m2
- Konyha: 11.26 m2
- Fürdő: 5.50 m2
- Közlekedő: 3.45 m2
- Hálószoba I.: 9.32 m2
- Hálószoba II.: 12.69 m2
- Hálószoba III.: 19,45 m2
- Terasz: 15 m2
Műszaki tartalom:
30 PHT hőszigetelő tégla
12 cm-es grafitos drywith hőszigetelés
Alumínium, szinterezett, hőszigetelt, 3 rétegű nyílászárók.
Teraszokon üvegkorlátok
Fűtés: hőszivattyú padlófűtéssel
A burkolatok választhatóak:
- Hideg burkolat 8000 ft/m2
- Meleg burkolat 6000 ft/m3
- Ajtók: 100 ezer/db
- Szaniterek a fürdőszobában bruttó 300.000 Ft értékben választhatók.
Konyhabútor: nincs
Szobákban inverteres hűtő fűtő klíma
A környék infrastruktúráját tekintve, rendkívül jól ellátott. Közelben több buszjárat, séta távra, valamint az Örs Vezér Tér csupán 15 perces buszúttal elérhető.
- Közelben számos ABC, a 16. kerületi piac, valamint LIDL és Aldi SPAR, TESCO Express is megtalálható.
- Az Erzsébetligeti uszoda, valamint futópálya és fittness park gyalogosan 4 perc.
- A BGE Főiskola Külkereskedelmi szaka 10 perc sétára található!
Amennyiben felkeltette érdeklődését a lehetőség, várom hívását, AKÁR HÉTVÉGÉN IS!
Részletek
-
Építés éve:
2026 -
Akadálymentes:
nem -
Szobák száma:
4 -
Állapot:
új -
Fűtés:
hőszivattyús -
Épület típusa:
tégla -
Komfort:
összkomfortos -
Terasz:
15 m2 -
Kilátás:
kertre néz -
Parkolás:
saját parkoló -
Szintek száma:
2 -
Lift:
nincs -
Fényviszonyok:
világos
